Descripció de la propietat
A Montemar, on la tranquil·litat i les vistes al mar defineixen l’estil de vida, s’alça aquest elegant habitatge unifamiliar que combina amplitud, privacitat i una ubicació privilegiada a Castelldefels.
Construïda l’any 2001 sobre una parcel·la de 440 m² i amb 282 m² distribuïts en tres còmodes plantes, la casa gaudeix d’una posició elevada que regala cada dia una panoràmica oberta amb el Mediterrani com a horitzó. La llum natural inunda cada estança i crea una atmosfera càlida i serena a tots els seus espais.
L’exterior convida a viure’l. El jardí envolta l’habitatge generant intimitat, mentre que la zona de piscina amb tarima de fusta es converteix en l’escenari perfecte per a llargues sobretaules, trobades amb amics o simplement moments de descans sota el sol.
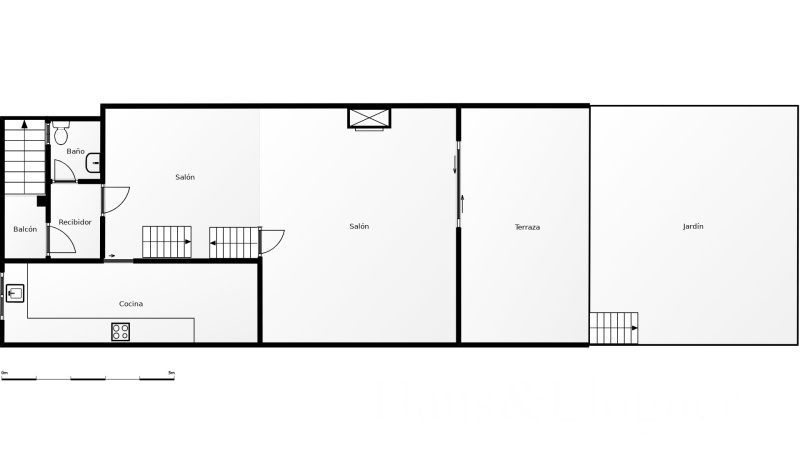
A l’interior, la distribució ha estat pensada per a la vida familiar sense renunciar al confort. El saló menjador, ampli i lluminós, connecta amb una magnífica cuina office que s’obre directament al jardí i a una agradable zona chill out. A la mateixa planta, la suite principal ofereix vestidor, bany privat i sortida directa a l’exterior, creant un espai íntim i funcional difícil de trobar.
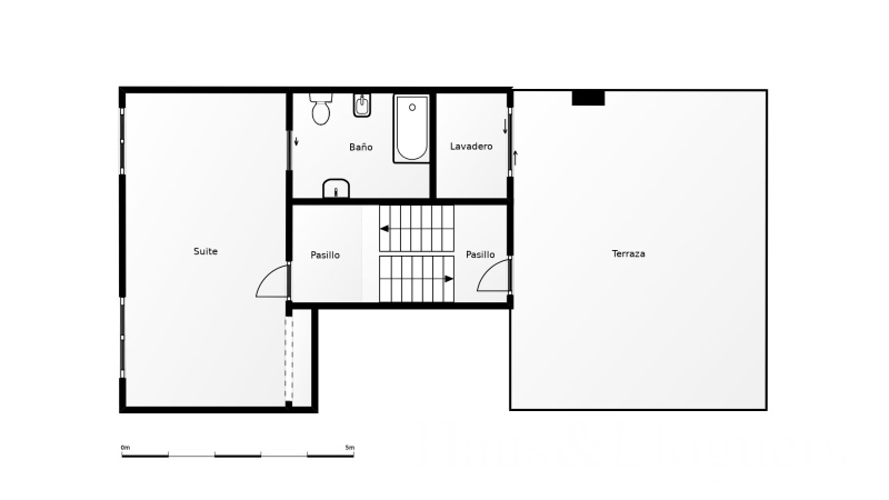
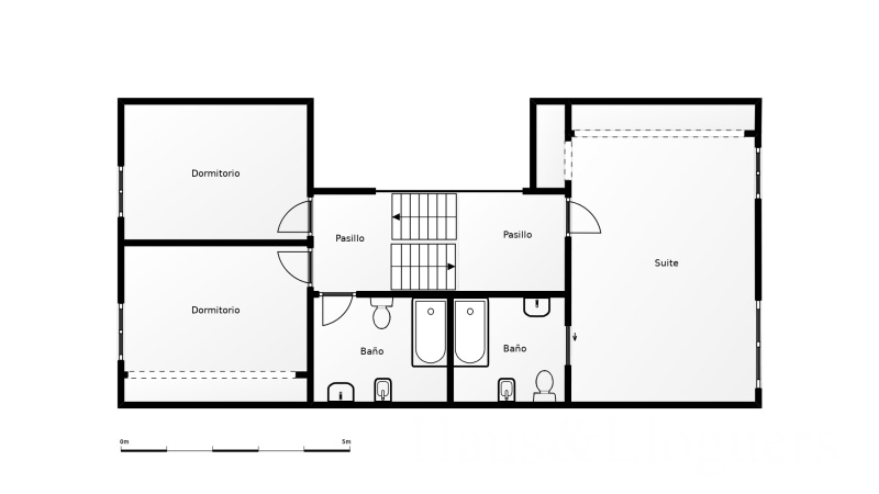
La planta superior acull quatre dormitoris i dos banys, un d’ells en suite. Diverses habitacions s’obren a la terrassa, on les vistes i la llum natural esdevenen protagonistes, aportant una sensació constant de benestar.
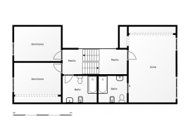
La planta semisoterrani afegeix versatilitat a l’habitatge amb una gran sala polivalent, bany complet i una estança addicional que es pot adaptar com a despatx, gimnàs, sala de jocs o espai creatiu.
Viure a Castelldefels és gaudir de més de 300 dies de sol l’any, de la seva extensa platja, d’una excel·lent oferta gastronòmica i d’una ubicació estratègica a pocs minuts de Barcelona i de l’aeroport, amb excel·lents connexions i una àmplia oferta educativa nacional i internacional.
Aquesta no és només una casa. És una llar pensada per a aquells que busquen qualitat de vida, espai i vistes al mar sense renunciar a la comoditat d’estar a prop de tot.
CALEFACCIÓ, PARQUET, PISCINA PRIVADA, EXTERIOR, ASSOLELLAT, GAS NATURAL, PORTA BLINDADA, TERRASSA, VISTES AL MAR, VISTES A LA MUNTANYA, CUINA EQUIPADA, ZONA TRANQUILA, POCS VEÏNS, TV SATÈL·LIT, URBANITZACIÓ, JARDÍ PRIVAT, ACOLLIDORA, SEMINOVA, ALARMA, TARIMA DE FUSTA, SALA D'USOS MULTIPLES, VANGUARDISTA, VISTES PISCINA, VISTA JARDÍ
- croquis_19.pdf [PDF 380 KB]
















































